






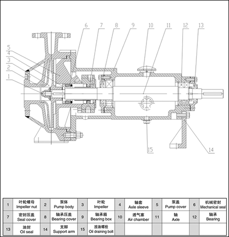
苯甲酸泵結構圖

苯甲酸又稱安息香酸、芐酸,結構簡式為C₆H₅COOH,是苯環上的一個氫被羧基取代形成的化合物。苯甲酸一般常作為藥物或防腐劑使用,有抑制真菌、細菌、霉菌生長的作用,藥用時通常與水楊酸合劑涂在皮膚上,用以治療癬類的皮膚疾病。可用于合成纖維、樹脂、涂料、橡膠、煙草工業。 維基百科
熔點: 122.3 °C
分子式: C7H6O2
摩爾質量: 122.12 g/mol
沸點: 249.2 °C
密度: 1.27 g/cm³
產品概述
苯甲酸泵是單級單吸懸臂式離心泵。適用于輸送苯甲酸液用,也可用于輸送不含懸浮顆粒物的其他腐蝕性液體。介質的溫度允許-20℃~380℃,泵是水平軸向吸入,徑向頂端吐出,泵前側有保溫夾套,雙重保夾可允0.59MPa, 220℃的蒸汽保溫。用戶可根據被輸送介質的腐蝕性能程度選用不同材料,型號和不同流量揚程可調控。